Duplex - sold - 1300 Wavre -

Duplex - for sale - 1300 Wavre
2 1 90 m² 1 PEB : D

Description

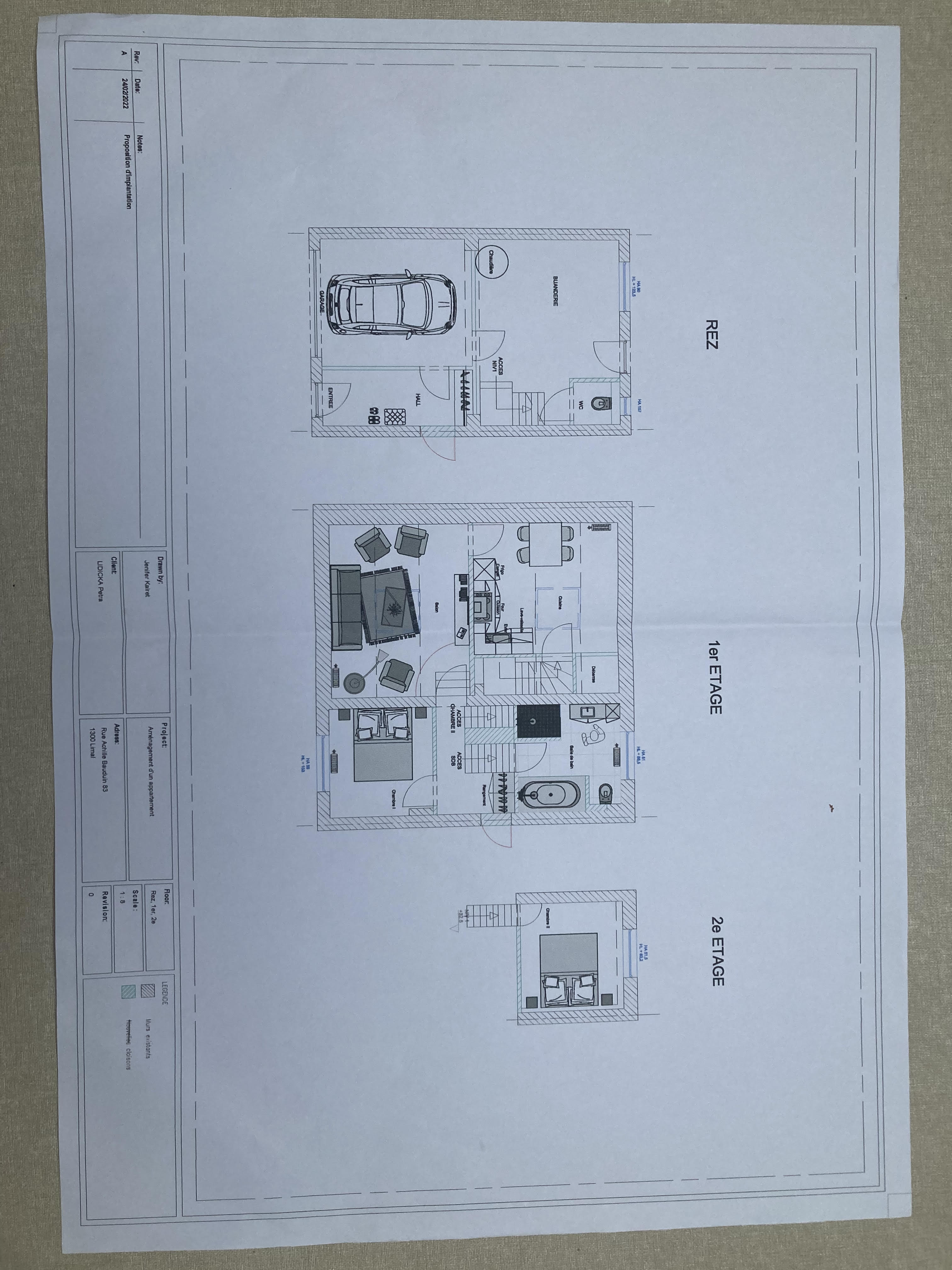
OPTION - In a small two-unit condominium on a quiet street, this duplex flat dating from 1985 was renovated in 2021/2022. It offers a total surface area of +/- 119 m² including the garage, of which +/- 90 m² is habitable. The appartment is within walking distance of public transport, shops, schools and the train station. Ground floor: spacious entrance hall with access to the garden, laundry room and large garage. 1st floor: super-equipped kitchen (approx. 18 m²) with the possibility of adding a dining area, living room (approx. 20 m²), 2 bedrooms (11 - 8 m²) and a shower room. Large garden with exclusive use. PVC double glazing, Viessmann condensing gas heating from 2022. EPB D CO2 54. Electricity conform. No charges, everything is individual! Free on deed. The information and surface areas are given for information only and are not contractually binding.

Detailed description:

Ground floor:

- Large entrance hall, beige tiled floor, spotlights, guest toilet (toilet to be installed by the buyer) and access to the garden.
- 7 m² laundry room, draining for sink, spotlights, with views over the garden, this room could be used as an office. 
- Large garage with manual sectional door
- Garden of approx. 150 m² with a garden shed, which is not on the plans. The buyer can decide to keep it and will be responsible for it, or remove it at his own expense.

1st floor:

- Renovated kitchen of +/- 18 m² fully equipped (traditional and combined ovens, ceramic hob, extractor fan, dishwasher, 2 sinks, fridge and freezer with drawers, spotlights) with the possibility of adding a dining area.
- Living room of +/- 20 m², laminate parquet flooring, spotlights
- Bedroom 1 of +/- 11 m² with space for wardrobes, laminate parquet flooring
- Bedroom 2 of +/- 8 m² on a half-level, laminate parquet flooring
- New shower room of +/- 8 m² (shower, wall-hung toilet, 2 washbasins integrated into a storage unit, heated towel rail, mirror, wall cabinet, spotlights and window).

MISCELLANEOUS

Electricity in conformity
Velux window with solar-powered, remote-controlled external shutter
Mosquito screens
Bi-hourly electricity meters
Double glazing and PVC windows
Viessmann condensing gas heating and 2022 hot water boiler
New radiators with thermostatic valve
Tiled roof

Address

Rue Achille Bauduin 83 Box A - 1300 Wavre

Documents

General

Reference 5566862
Category Duplex
Furnished No
Number of bedrooms 2
Number of bathrooms 1
Garden Yes
Garden surface 150 m²
Garage Yes
Terrace No
Parking No
Habitable surface 90 m²
Ground surface 202 m²
Availability 01/04/2024

Building

Construction year 1985
Number of garages 1
Inside parking No
Outside parking No
Renovation (year) 2021

Name, category & location

Number of floors 1

Basic Equipment

Access for people with handicap No
Kitchen Yes
Type (ind/coll) of heating individual
Elevator No
Double glass windows Yes
Type of heating gas
Type of kitchen hyper equipped
Bathroom (type) shower

General Figures

Built surface (surf. main building) 119
Number of toilets 2
Room 1 (surface) 11 m²
Room 2 (surface) 8 m²
Width of front width 5.1
Living room (surface) 20 m²
Kitchen (surf) (surface) 18 m²
Bathroom (surface) 8 m²

Various

Laundry Yes

Next To

Shops (distance (m)) 600
Schools (distance (m)) 100
Public transports (distance (m)) 750
Sport center (distance (m)) 1800
Nearby shops Yes
Nearby schools Yes
Nearby public transports Yes
Nearby sport center Yes
Nearby highway Yes

Prices & Costs

Land tax (amount) 557.8 €

Outdoor equipment

Pool No

Cadaster

Land reg. inc. (indexed) (amount) 1523 €
Section of land registry
Nr. of land registry
Area (ha/a/ca) of land registry
Land registry income (€) (amount) 728 €

Charges & Productivity

VAT applied No
Property occupied No

Connections

Sewage Yes
Electricity Yes
Gas Yes
Water Yes

Technical Equipment

Type of frames wood or pvc

Ground details

Type of environment city
Type of environment 2 quiet
Orientation of the front south-east
Flooding type (flood type) potential flood area
Flooding type 2023 (flood type) Class C (small chance under current climate)

Legal Fields

Building permission No
Parcelling permission No
Purpose of the building (type) private - single family
Right of pre-emption No
Urbanistic use (destination) living zone

Certificates

Yes/no of electricity certificate yes, conform

Energy Certificates

Energy certif. class D
Energy consumption (kwh/m²/y) 296
CO2 emission 54
E total (Kwh/year) 35260
En. cert. unique code 20231115000213
EPC valid until (datetime) 11/15/2033
PEB date (datetime) 11/15/2023
Contact for estate : 5566862

* Mandatory fields

Cookies preferences

The protection of your personal data is important to us. This is why we detail below the different services and features of the site that use cookies and let you decide which cookies you want to allow or refuse.

Please note, however, that if you block certain types of cookies, this could impact your browsing experience on our site as well as the available features.

We use mandatory functional cookies to ensure the proper functioning of the site. They are, for example, necessary to find the result of a search or to save the choice of language.

Certain functions, such as the display of videos or maps, are provided via external components developed by partners such as YouTube or Google. Certain components use cookies which are likely to allow these third parties to follow the behavior of Internet users in order, for example, to carry out advertising targeting. The activation of these features and the associated cookies is therefore subject to your consent.